the ark four season home
bear valley, california
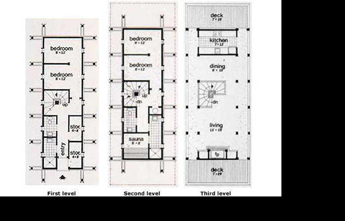
The Ark is an example of vertical expression derived from its forest surroundings. A high altitude house designed to manage heavy snowfalls, the house is able to shed snow like a tree. The lower walls are recessed in order to prevent damage from snow build-up pressure. All materials are indigenous to the region.


